LOCAL EN ALQUILER
Barcelona (NOU BARRIS) - REF. 1868

104 m2

1
alquiler: 1.621 €/mes
Descripción

Se alquila espectacular local comercial de obra nueva en Nou Barris, Porta. Ideal para emprender o expandir tu negocio en un espacio moderno, amplio y versátil.


📐 Características principales:

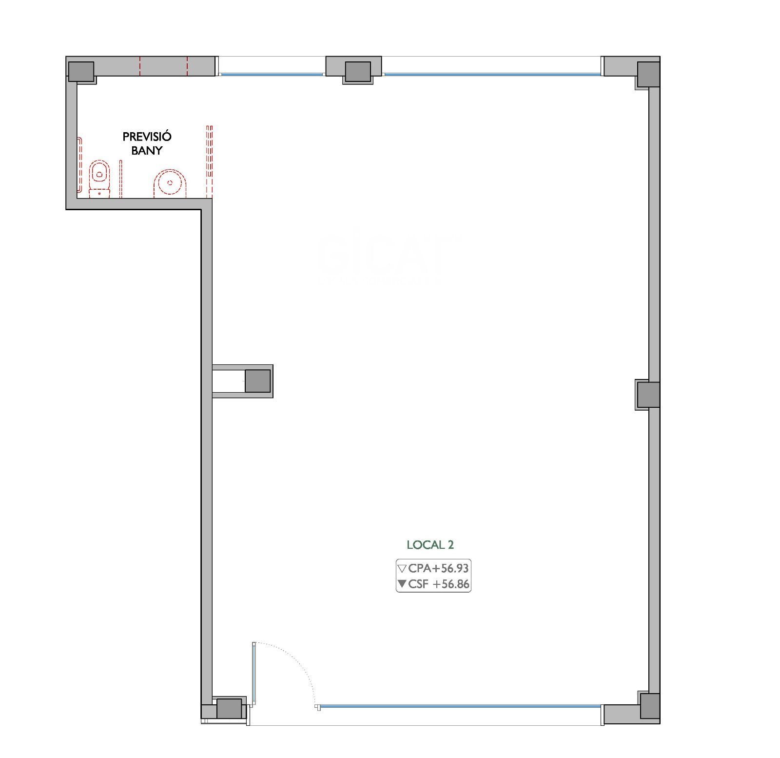
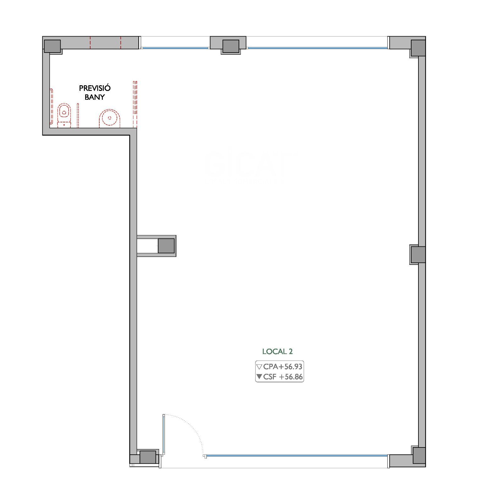
✅ Superficie total: 105 m²

✅ Zona principal diáfana: 8 metros de ancho x 11 metros de fondo

✅ Altura libre: 5 metros

✅ Fachada: 10 metros lineales (gran visibilidad comercial)

✅ Salida de humos (apto para hostelería y restauración)

✅ Baño independiente: 2 x 2,2 metros (ampliable)


🌟 ¿Por qué este local?

Espacio completamente diáfano, ideal para adaptar a cualquier actividad:

Cafetería o restaurante.

Clínica o centro estético.

Tienda retail.

Oficina o showroom.

Gimnasio boutique.


La altura de 5 metros permite posibilidad de altillo o doble ambiente.

Los 10 metros de fachada ofrecen gran luminosidad y máxima exposición comercial.

Al ser de obra nueva, cuenta con instalaciones modernas y excelente eficiencia.


Una oportunidad única para instalar tu negocio en un espacio con gran potencial y múltiples posibilidades de distribución.


Nou Barris está situado al norte de la ciudad, entre la sierra de Collserola y el distrito de Sant Andreu. Se trata del distrito más joven de Barcelona tiene a su favor debe ser una zona tranquila y residencial. La característica que une los barrios del multiétnico Nou Barris es que sustituyeron las masías y huertos que tenían en sus orígenes por bloques de vivienda para alojar a la población que llegaba de otras comunidades.


📞 Para más información o concertar visita, contacta sin compromiso.

Características
Precio Alquiler 1.621 €/mes
Año de construcción 2025
Construidos 104 m2
Útiles 104 m2
Altura/Planta 1
Estado En bruto
Salida de humos
Calificación Energética (B) VER
Vídeos
Ubicación
La dirección del inmueble es aproximada.
Escalas de eficiencia


Eficiencia Emisiones: 4,00
Eficiencia Consumo: 29,00
29
4

Tu agente
Daniel
Contáctanos

Si deseas más información sobre esta propiedad, por favor, rellena el formulario.

 Sí, he leído y/o acepto las Condiciones de uso y la Política de privacidad
Inmuebles similares:
 
1.700 €/mes
Ref. 1732  100 m2  1

Local en calle Mallorca

 
1.789 €/mes
Ref. 1188  102 m2

Local en bruto

Inmobiliaria en Barcelona
Inscritos en el registro de agentes inmobiliarios de Cataluña con número 8467 y miembros colegiados del Colegio de Administradores de Fincas de Barcelona-Lleida con número C0006720.

CONTÁCTANOS

C/ Muntaner 200, 2n 6a
08036 Barcelona